产品目录
    松林石化:
  过滤设备
  静态混合设备
  换热器冷却设备
  动态混合设备
  石化管道设备
  规整填料
  油罐附件
  呼吸阀

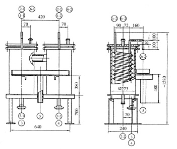
(五)SC8型取样冷却器

  ★产品简介
  取样冷却器适用于温度较高的液体和气体等介质取样,具有结构紧凑、传热效率高、清洗方便、使用寿命长等优点,广泛用于石油、化工、轻工、电力等部门的小型加热、换热。冷却器也可做为油泵的自封冷却器。
  ★SC8-IB型取样冷却器主要尺寸及性能参数表

  表3-6
管道
设计压力
0.58MPa
壳程
设计压力

0.58MPa

设计温度
172℃
设计温度
60℃
操作介质
汽、水
操作介质
换热面积:1.047m2
  表3-7
编号
名称
数量
公称直径DN
公称压力PN

备注

11-2
水蒸汽入口
2
10
/
21-2
水蒸汽出口
2
10
/
3
冷却水入口
1
40
2.0
GB9115.12-88
4
冷却水出口
1
40
2.0
GB9115.12-88
5
排水口
1
50
/
61-2
上排空口
2
G1/2
/
带管塞
71-2
下排空口
2
G1/2
/
带管塞
 
关于我们 | 产品介绍 | 信息反馈 | 联系方法 | 电子邮局 | 返回首页 | 电子信箱
版权所有© 启东市松林石化设备制造有限公司
地址:汇龙镇城东工业集中区1号 邮编:226200
电话:0513-83665998 手机:13951421718 13951305867