产品目录
    松林石化:
  过滤设备
  静态混合设备
  换热器冷却设备
  动态混合设备
  石化管道设备
  规整填料
  油罐附件
  呼吸阀

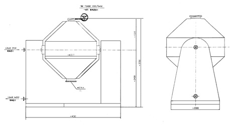
(七)SZG型转鼓混合机

  ★应用领域
  ◆医药工业:中西原料药、工业药品等
  ◆机械行业:粉末冶金、磁性粉末、金刚石刀具制造业等
  ◆化工行业:行工原料、染料、涂料、火柴、树脂及各种填充料等
  ◆矿业:矿石粉末、耐火材料、碳化硅等
  ◆其它:食品、饲料、农药、化肥、橡胶、荧光粉、陶瓷等。

  ★性能特点:
  ◆该机利用独特的可倒置的二维摇滚原理,产生一股强力的交替脉冲运动,可连续不断地迫使料筒内的物料既有扩散混合,又有移动混合,从而达到均匀混合。
  ◆混合时间短,均匀度高。
  ◆尤适于比重、数量、粒径相差较大的多种物料均匀混合。
  ◆能耗低、重量轻、密闭操作,维修方便。

 

★技术参数表 表52
型号
SZG-150
SZG-300
SZG-600
SZG-1000
SZG-2000
全容积
150
300
600
1000
2000
鼓内工作压力
常压
夹套内压力
0.6
每次投料量
75
150
300
500
1000
装机功率
1.5
2.2
3
5.4
9.2


转鼓加热器简图
  

关于我们 | 产品介绍 | 信息反馈 | 联系方法 | 电子邮局 | 返回首页 | 电子信箱
版权所有© 启东市松林石化设备制造有限公司
地址:汇龙镇城东工业集中区1号 邮编:226200
电话:0513-83665998 手机:13951421718 13951305867