|
五、石化管道设备
|
| |
|
|
表5-3
|
代号
|
Ⅰ
|
Ⅱ
|
Ⅲ
|
|
材质
|
20(CS20)
|
1Cr18Ni9Ti(321)
|
0Cr18Ni9(304)
|
|
代号
|
Ⅳ
|
Ⅴ
|
Ⅵ
|
|
材质
|
00Cr19Ni11(304L)
|
00Cr17Ni12Mo2(316)
|
00Cr17Ni14Mo2(316L)
|
注:特殊代号为D,并指明材质。 |
|
|
|
表5-4
|
密封面型号
|
突面
|
凹凸面
|
榫槽面
|
全平面
|
环边接面
|
锥管螺纹
|
|
代号
|
RF
|
MFM
|
TG
|
FF
|
RJ
|
RC或PT
|
注:凹面代号为FM;凸面代号M;面代号为T;槽面代号为G。 |
|
|
|
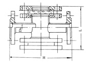
TSG1对夹型视镜 表5-5
|
PN(MPa)
|
≤1.0
|
1.6、2.5
|
|
工作压力(MPa)
|
<0.6
|
1.0
|
|
工作温度(℃)
|
0-200
|
注:允许急变温度<180℃。 |
|
|

TSG1 对夹型视镜
|
TSG1对夹型视镜连接尺寸 表5-6
|
DN
|
FW
|
Fd
|
-H
|
L
|
|
PN≤1.6
|
PN2.5
|
|
10
|
40
|
F60
|
100
|
140
|
160
|
|
15
|
40
|
F60
|
100
|
140
|
160
|
|
20
|
50
|
F76
|
150
|
160
|
180
|
|
25
|
50
|
F76
|
150
|
160
|
180
|
|
40
|
60
|
F89
|
170
|
180
|
200
|
|
|
|

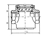
TSG2 单压型视镜
|
TSG2单压型视镜 表5-7
|
DN
|
FW
|
Fd
|
-H
|
L
|
|
0.6
|
1.0
|
1.6
|
2.5
|
|
15
|
40
|
48
|
156
|
140
|
140
|
140
|
160
|
|
20
|
50
|
57
|
225
|
160
|
160
|
160
|
180
|
|
25
|
50
|
57
|
225
|
160
|
160
|
160
|
180
|
|
40
|
80
|
89
|
288
|
180
|
180
|
180
|
200
|
|
50
|
80
|
89
|
288
|
220
|
220
|
220
|
250
|
|
65
|
100
|
108
|
312
|
250
|
250
|
250
|
-
|
|
80
|
125
|
133
|
325
|
270
|
270
|
-
|
-
|
|
100
|
125
|
133
|
380
|
320
|
320
|
-
|
-
|
|
125
|
150
|
159
|
420
|
360
|
-
|
-
|
-
|
|
150
|
205
|
219
|
480
|
420
|
-
|
-
|
-
|
|
|
|

|
TSG3螺纹紧型视镜 表5-8
主要性能参数见表 5-5
|
DN
|
L
|
H
|
|
PN≤1.6
|
PN2.5
|
|
15(1/2")
|
89
|
64
|
70
|
|
20(3/4")
|
89
|
64
|
70
|
|
25(1")
|
89
|
70
|
70
|
|
|
|

|
TSG4框式对夹型视镜 表5-9
主要性能参数见表 5-5
|
DN
|
FW
|
A
|
H
|
B
|
L
|
|
PN≤1.6
|
PN2.5
|
|
15
|
18
|
75
|
85
|
110
|
200
|
200
|
|
20
|
18
|
75
|
85
|
110
|
200
|
200
|
|
25
|
22
|
80
|
95
|
120
|
210
|
210
|
|
40
|
30
|
90
|
125
|
120
|
210
|
230
|
|
|
| |
|
|